Valikko Sulje

koivuviidantie 26

ostajan etu – enemmän mahdollisuuksia suunnitella

Kun varaat asunnon Asunto Oy Espoon Koivuviidantie 26 varhaisessa vaiheessa, saat käyttöösi sisustussuunnittelijan asiantuntemuksen arvoltaan n. 7 900 €. Etu on tarkoitettu sinulle, joka haluat vaikuttaa kotisi toimivuuteen, tilaratkaisuihin ja yksityiskohtiin jo ennen rakentamisen valmistumista.

Sisustussuunnittelijan kanssa pääset suunnittelemaan kotia kokonaisuutena omien tarpeidesi ja elämäntyylisi mukaan. Varhainen varaus mahdollistaa yksilölliset ratkaisut aina pohjaratkaisusta kiinteisiin valaistus-, sähkö- ja säilytysratkaisuihin sekä materiaalivalintoihin. Kun päätökset tehdään ajoissa, lopputuloksena on harkittu ja toimiva koti ilman myöhempiä kompromisseja.

Ostajan etu koskee kauppoja, joissa varaus ja esisopimus on tehty viimeistään 28.2.2026.

erillistaloja viihtyisässä Pohjois-TapiolassA

Pohjois-Tapiolan rauhalliselle pientaloalueelle rakentuu uusi, laadukas neljän erillistalon kokonaisuus. PRC Rakennus Oy toteuttaa Asunto Oy Espoon Koivuviidantie 26, joka sijoittuu kahdelle omalle tontille (yht. 1553 m²). Talot rakennetaan kestävästi kivirakenteisina ja kytketään toisiinsa autokatoksilla. Alue tarjoaa ihanteelliset puitteet perheille: lähistöltä löytyvät koulut, päiväkodit, monipuoliset palvelut sekä hyvät kulkuyhteydet niin julkisilla kuin omalla autollakin.

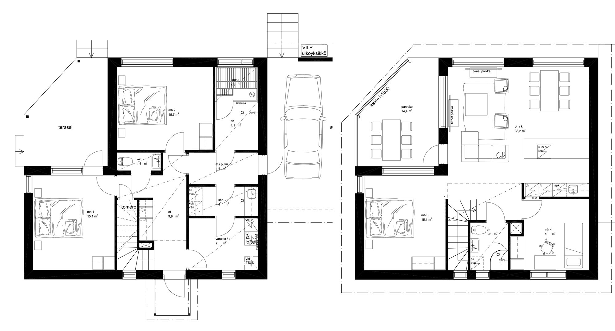
A1 & A2 – 141 m²

Ylätontilla sijaitsevat asunnot A1 ja A2 ovat tilavia, kahteen kerrokseen suunniteltuja koteja, joissa arjen toimivuus ja tyylikkyys kohtaavat. Yläkerrassa on valoisa olohuone, avokeittiö ja ruokailutila, jotka muodostavat avaran kokonaisuuden. Suuret ikkunat päästävät luonnonvalon ihanasti sisään. Keittiö on Novartin mallistoa ja kodinkoneet ovat Siemensin integroitua laatua. Yläkerrassa sijaitsevat myös kaksi tilavaa makuuhuonetta sekä kylpyhuone. Olohuoneesta on kulku parvekkeelle, joka on mahdollisesti lasitettavissa.

Sisäänkäyntikerroksessa on eteinen, jossa on kaapisto ulkovaatteille ja laatat lattioissa. Alakerrassa puolestaan löytyy monikäyttöinen aula- tai arkiolohuone, josta on kulku katetulle terassille. Alakerrassa on myös makuuhuone, askarteluhuone, joka voi toimia työ- tai vierashuoneena, kodinhoitohuone, erillinen wc sekä tyylikäs pesuhuone kahdella suihkulla. Sauna on viimeistelty lasiseinällä ja pylväskiukaalla.

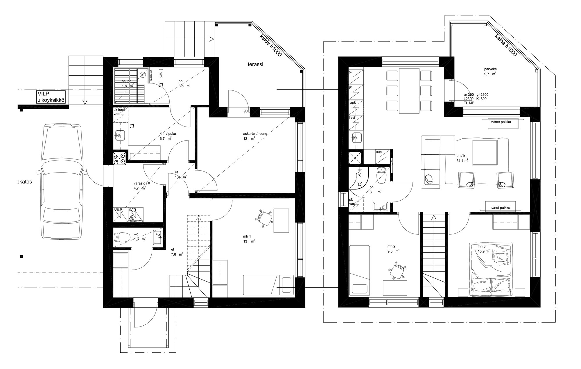
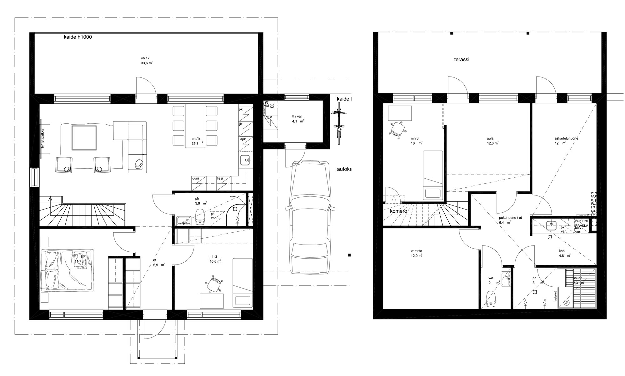
B1 – 138 m²

Asunto B1 sijaitsee alatontilla, ja sen sisäänkäynti on alakerrassa. Alakerrassa on lämmin varasto, tekninen tila sekä kaksi makuuhuonetta. Lisäksi alakerrassa on erillinen wc, kodinhoitohuone ja pukuhuone, josta on kulku ulos. Pesuhuone ja tunnelmallinen sauna viimeistelevät tämän kerroksen.

Yläkerrassa on avara olohuone, ruokailutila ja saarekkeellinen avokeittiö, joka tuo lisää säilytystilaa. Keittiö on Novartin mallistoa ja kodinkoneet Siemensin laatua. Yläkerrassa on myös kaksi makuuhuonetta ja kylpyhuone. Olohuoneesta on kulku kulmaparvekkeelle, joka on mahdollista lasittaa.

Alakerran katettu terassi on myös lasitettavissa optiolla, joka tuo lisää tilan tuntua ja suojaa sään vaihteluilta.

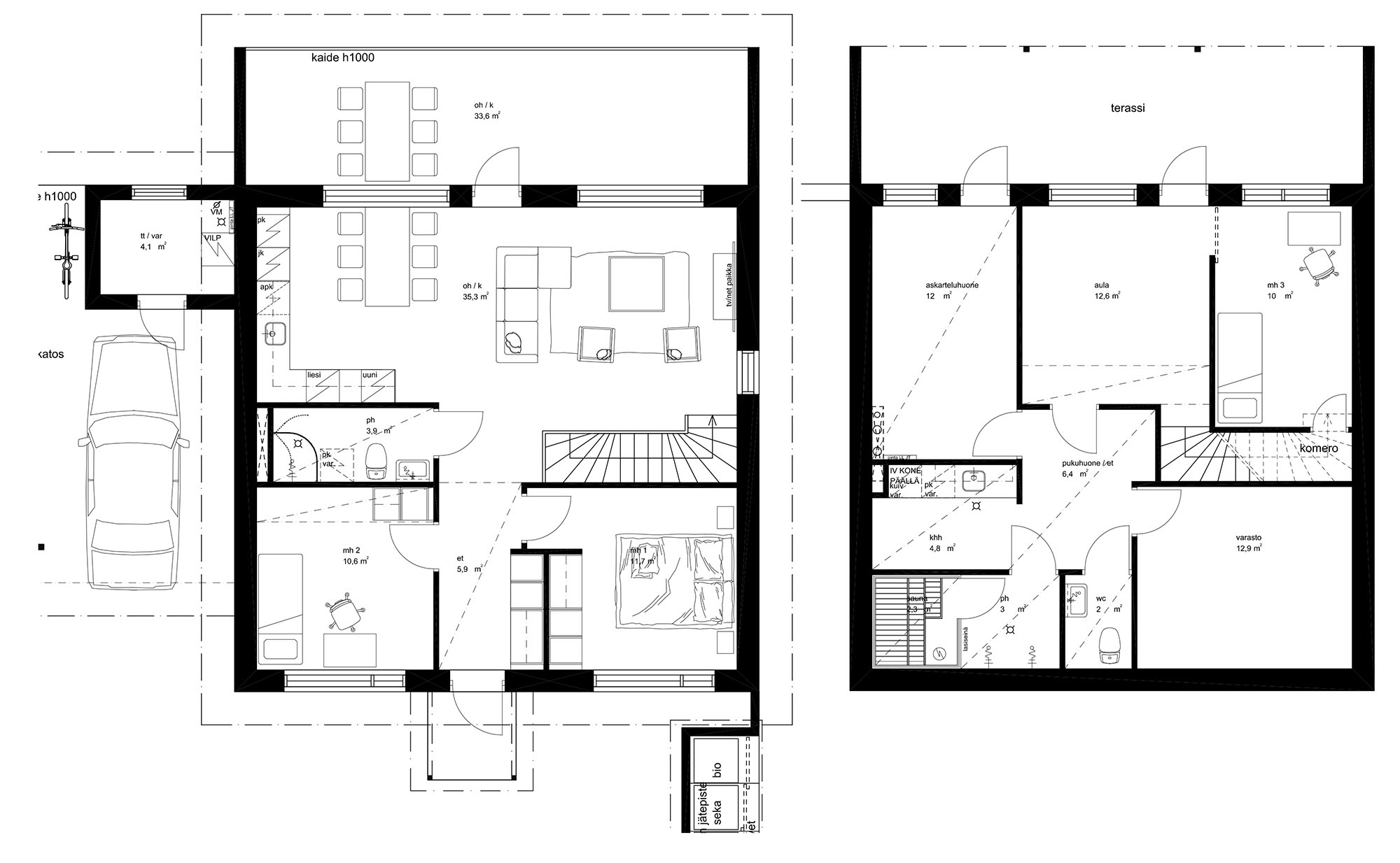
B2 – 114 m²

Asunto B2 on kompaktimpi, mutta tehokkaasti suunniteltu koti. Alakerrassa on makuuhuone, askarteluhuone, kodinhoitotilat ja pukuhuone. Lisäksi alakerrassa on ikkunallinen pesuhuone ja tyylikäs sauna. Katettu terassi on myös lasitettavissa optiolla.

Yläkerrassa on valoisa olohuone suurilla ikkunoilla, jotka tuovat tilaan runsaasti luonnonvaloa. Olohuone avautuu avokeittiöön ja ruokailutilaan, jotka muodostavat avaran kokonaisuuden. Keittiö on Novartin mallistoa, ja kodinkoneet ovat Siemensin laatua. Yläkerrassa on lisäksi kaksi makuuhuonetta ja kylpyhuone. Olohuoneesta on kulku parvekkeelle, joka on myös mahdollisesti lasitettavissa.

Autopaikat ja energiatehokkuus

Jokaiselle asunnolle kuuluu kaksi autopaikkaa: toinen autokatospaikka ja toinen pihapaikka. Autokatoksissa on varaus sähköauton latauspisteelle (max. 11 kW per asunto) sekä pistorasiat auton lämmitystä varten talvella.

Tämä on RS-kohde, ja rakentaminen on alkanut syksyllä 2025. Valmistuminen on loppuvuodesta 2026. Kohteelle on arvioitu energialuokka A2018, mikä takaa alhaiset käyttökustannukset ja ympäristöystävällisyyden.

Asunto

Huoneiston koko

Osakemäärä

Huoneselitelmä

Myyntihinta

Velaton myyntihinta

A1

141 + 4 m2

2729

4 h, k, rt, kph, ph, s, erill. wc, khh, askh + var

474.500 €

949.000 €

A2

141 + 4 m2

2729

4 h, k, rt, kph, ph, s, erill. wc, khh, askh + var

474.500 €

949.000 €

B1

138 m2

2598

5 h, k, rt, kph, ph, s, erill. wc, khh, pukuh, var

448.500 €

897.000 €

B2

115 m2

2144

4 h, k, rt, kph, ph, s, erill. wc, khh/pukuh, askh, var

379.500 €

759.000 €

TILAA ESITE

Markkinointilupa